Table des matières
QCAD
QCAD - CAO 2D pour Windows, Linux et Mac, Le Système De CAO Open Source Pour Tous
QCAD est une application libre et open source pour la rédaction assistée par ordinateur (CAD) en deux dimensions (2D). Avec QCAD, vous pouvez créer des dessins techniques tels que des plans pour les bâtiments, les intérieurs, les pièces mécaniques ou les schémas et les schémas. QCAD fonctionne sous Windows, macOS et Linux. Le code source de QCAD est publié sous la version 3 de la GPL (GPLv3), une licence Open Source populaire.
La version actuelle de QCAD est 3.32. au 25/01/2026
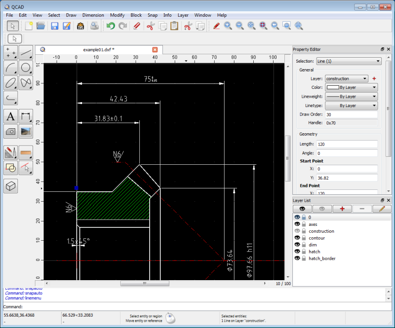
Fenêtre d'application QCADQCAD a été conçu avec la modularité, l'extensibilité et la portabilité à l'esprit. Mais ce que les gens remarquent le plus souvent à propos de QCAD, c’est son interface utilisateur intuitive. QCAD est un système de CAO 2D facile à utiliser mais puissant pour tous. Vous n'avez pas besoin d'expérience CAO pour commencer avec QCAD immédiatement. Vous pouvez Télécharger QCAD aujourd'hui gratuitement!
Si vous recherchez l'Open Source gratuite QCAD Community Edition, vous pouvez télécharger la version d'essai de votre plate-forme (voir ci-dessus), puis supprimer le module complémentaire QCAD Professional en mode d'essai (cliquez sur Supprimer dans Trialle widget d'essai et suivez les instructions de l'écran).
Caractéristiques principales
- Calques
- Blocs (groupement)
- 35 polices de CAO incluses
- Prise en charge des polices TrueType
- Diverses unités métriques et impériales
- Entrée et sortie DXF et DWG
- Impression à l'échelle
- Impression sur plusieurs pages
- Plus de 40 outils de construction
- Plus de 20 outils de modification
- Construction et modification de points, lignes, arcs, cercles, ellipses, cannelures, polylignes, textes, dimensions, trappes, remplissages, images raster
- Divers outils puissants de sélection d'entités
- Objet snaps
- Outils de mesure
- Bibliothèque de pièces avec plus de 4800 pièces de CAO
- Interface de script ECMAScript (JavaScript) très complète et extrêmement puissante
- Outils de ligne de commande (dwg2pdf, dwg2svg, dwg2bmp, etc.)
- QCAD/CAM:
- G-Code export
- Nichant
Cliquez ici pour une liste complète des fonctionnalités.

